- SortierreihenfolgeStandard
Bildname, A → Z
Bildname, Z → A
✔ Aufnahmedatum, neu → alt
Aufnahmedatum, alt → neu
Veröffentlichungsdatum, neu → alt
Veröffentlichungsdatum, alt → neu
Besuche, hoch → niedrig
Besuche, niedrig → hoch
Startseite / Beratung, Planung, Ausführung 14
Ansicht:
Monatsliste
Veröffentlichungsdatum

- Vorprojekte und Planung Sanit r
Badezimmer 3D 1
Badezimmer 3D 2
Badezimmer 3D 3
Badezimmer 3D 4
Dimensionierung und Simulation von Solaranlagen
Dusche Entwurf 3D 1
Solar Auswertung
Solaranlage Auswertungen
Solaranlagen auswerten analysieren optimieren
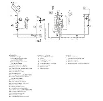
schema solar heizungsunterst tzend mit holz und l anbindung
solar f r warmwasser
Solar via Internet überwachen und optimieren
Gestaltung Badezimmer