Planung Solar Gute solaranlagen planen heisst, objektspezifisch zugeschnittene und einfache Lösungen erarbeiten.
Im Hintergrund helfen dabei unsere rechnerischen Simulationen und wenn nötige unser Netzwerk
an Spezialisten.
Aus dem Haus der Gebr. Lüchinger AG kommen beispielsweise
via Internet auswert- und überwachbare Solaranlagen.

Solaranlagen auswerten analysieren optimieren
Solaranlage Auswertungen
Solar via Internet überwachen und optimieren
Online Überwachung, Datensammlung, Auswertung und Optimierung einer thermischen Solaranlage
solar f r warmwasser
Solar Auswertung
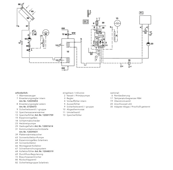
schema solar heizungsunterst tzend mit holz und l anbindung
Dimensionierung und Simulation von Solaranlagen